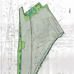
Aktueller rechtskräftiger Bebauungsplan
Nr. 08 "Gewerbestandort Seubtendorf"
Aufstellung

Die Stadt Tanna unterstützt durch die Einleitung des Bauleitplanverfahrens die Gewerbeansiedlung und die damit zusammenhängende Schaffung von Arbeitsplätzen, die dort entstehen. Der Standort ist mit Gebäuden eines ehemaligen landwirtschaftlichen Unternehmens bebaut, die bereits gewerblich genutzt werden. Die Überplanung dient der Sicherung der ansässigen Betrieb und schafft für diese Erweiterungsmöglichkeiten.
Verfahrensstand
► 21.05.2004 • Rechtskraft gem. § 10 (3) BauGB
Plandetails
► Bebauungsplan Nr. 08 • Plandarstellung
► Bebauungsplan Nr. 08 • Begründung
► Bebauungsplan Nr. 08 • Verfahrensschritte
Weitere Daten
Luftbild
Hinweis
Alle hier zur Verfügung gestellten Pläne und Unterlagen dienen lediglich Informationszwecken. Für eine rechtsverbindliche Auskunft nehmen Sie bitte Kontakt mit dem/der jeweils angegebenen Ansprechpartner/in auf.